食品工廠衛生規劃設計
鑒科供應鏈管理(廈門)有限公司致力于為食品企業提供優質的工廠食品安全衛生規劃設計服務,工廠食品安全衛生規劃設計的目標是科學、合理、實用、經濟、美觀。一個好的工廠食品安全衛生規劃設計方案往往需要:
1.綜合考慮企業、食品監管部門、客戶、消費者等相關方對食品工廠的訴求;
2.系統運用食品安全衛生管理、食品工程、食品工藝、食品機械及相關法規標準等方面的知識;
3.借助專業設計團隊長期的經驗積累。

專業規劃的好處
◆ 綜合企業生產與需求進行全面系統規劃
◆ 減少后續不斷的布局變更導致資金的浪費
◆ 用經濟的方式進行有效生產和管理
◆ 提高食品安全衛生管理水平等
非專業規劃的壞處
◆ 未能系統地滿足監管部門、客戶等相關方要求
◆ 缺乏系統規劃造成初期建設不必要浪費
◆ 后續硬件重新改造導致直接浪費
◆ 給后續食品衛生管理留下缺陷或增加困難
◆ 增加生產運作成本(如物流)等
工廠食品衛生規劃的原則
◆ 規劃設計與食品安衛生管理相結合
◆ 生產流程與布局合理優化
◆ 加工區域的食品衛生等級合理化
◆ 建筑結構對食品衛生影響最小化
◆ 注重食品衛生設施/設備的細節
◆ 規劃設計與生產效率相結合
◆ 人流/物流/氣流對食品衛生影響最小化
◆ 交叉污染控制合理化
◆ 確保加工用水/冰/蒸汽的安全衛生
工廠食品衛生規劃涉及的內容
◆ 加工產品確認
◆ 生產能力確認
◆ 產品工藝確認
◆ 產品加工流程合理化
◆ 加工區域的食品衛生等級規劃
◆ 生產人流、物流、氣流規劃
◆ 生產設備選擇及食品衛生評估
◆ 生產設備布局規劃
◆ 食品接觸容器/工器具評估與配置
◆ 食品車間安全衛生設施規劃
設施規劃
◆ 供水、排水
◆ 通風、排氣
◆ 采光、照明
衛生設施與設備
◆ 清洗消毒設施與設備
◆ 更衣洗手設施與設備
◆ 物料傳遞設施與設備
◆ 廢料處理設施與設備
◆ 清潔工器具配置
◆ 裝修材料選擇與裝修建議等
工廠食品衛生規劃交客戶成果
◆ 工廠食品安全衛生規劃設計書
◆ 產品說明
◆ 產品加工流程圖
◆ 車間平面布置圖
◆ 車間人流/物流圖
◆ 車間供水/排水網絡圖
◆ 車間衛生設施/設備配置建議
◆ 車間照明配置等
案例成果
一層平面布置圖

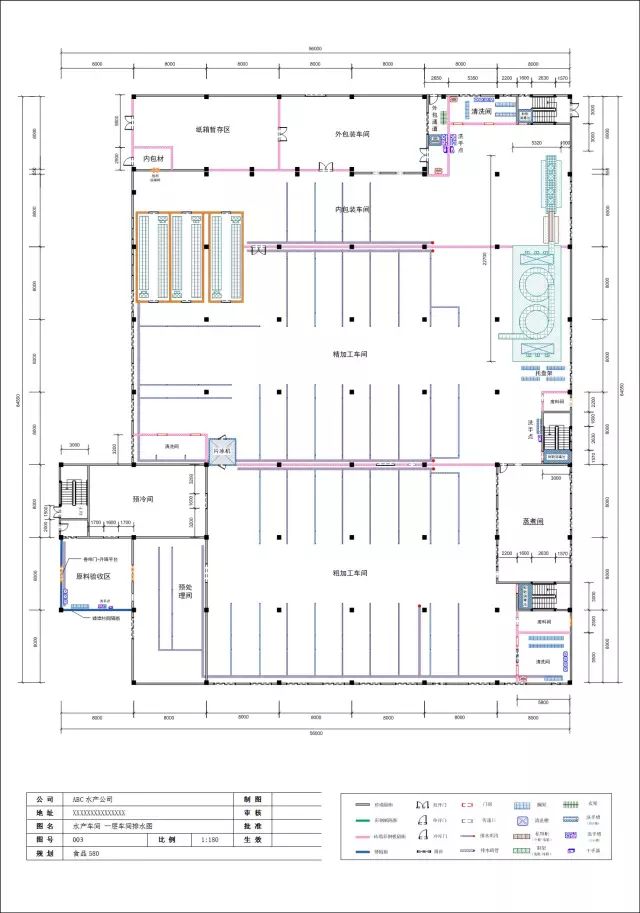
一層排水圖

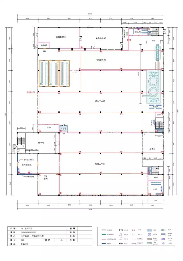
一層供水圖

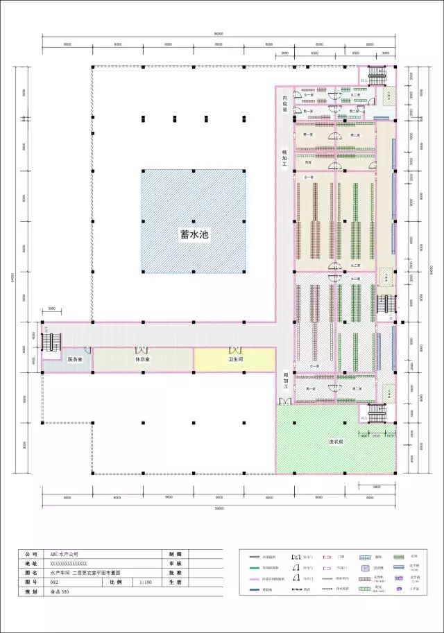
二層更衣室

如果您需要工廠規劃設計
歡迎聯系我們
廈門:17750652139
泉漳:17750652593
閩北:18060996062
全國:18060996562
線上商城:17705016580